Área do Cliente
|
Acesse pelo celular

Apartamento Padrão - Jardim Lutfalla Residencial para Venda em São Carlos

|
Compartilhe:
Total para Acessórios valores sujeitos a alteração.

Venda

(ITBI, Registro, Escritura e Certidões)
Consulte-nos
Residencial
Finalidade
201429
Referência
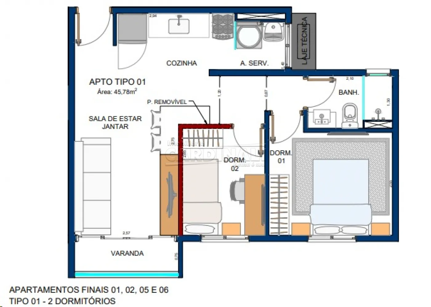
2
Dormitórios
1
Suite
1
Banheiro
1
Garagem
45.78 m²
A. Útil
Descrição do Imóvel

Descubra o prazer de viver em um apartamento que harmoniza conveniência, conforto e uma localização estratégica em São Carlos. Ideal para quem busca um lar aconchegante e bem planejado para facilitar a rotina diária.

Características do Imóvel

• 2 dormitórios, sendo 1 suíte, garantindo privacidade e conforto
• Banheiro moderno, otimizando a funcionalidade do espaço
• Sala espaçosa, proporcionando um ambiente agradável para convivência
• 1 vaga de garagem, oferecendo conveniência e segurança
• Localização em obra, assegurando que tudo está novíssimo e ao seu gosto

Diferenciais que Fazem a Diferença

Este apartamento de 46 m² foi inteligentemente projetado para maximizar cada metro quadrado, proporcionando espaços bem distribuídos que elevam o conforto do dia a dia. A suíte oferece um refúgio privativo dentro de seu próprio lar, enquanto a vaga de garagem traz segurança e comodidade. A área social do apartamento é ampla o suficiente para criar memórias com amigos e família, tudo isso em um ambiente seguro e recém-construído.

Localização Privilegiada

O Jardim Lutfalla é um bairro em contínua valorização na cidade de São Carlos, conhecido por seu ambiente tranquilo e sua proximidade com diversas conveniências. Localizado estrategicamente, o imóvel permite fácil acesso a supermercados, escolas e centros de saúde, assegurando que todas as suas necessidades sejam atendidas com facilidade. Viver aqui é sinônimo de ter a combinação ideal de tranquilidade residencial e acesso conveniente a serviços essenciais.

Ideal Para Você

Ideal para casais ou pequenas famílias que buscam um estilo de vida prático em um espaço bem localizado e confortável. Se você valoriza a privacidade, a segurança e a modernidade, este apartamento no Jardim Lutfalla é perfeito para atender às suas expectativas. Aproveite a vantagem de morar em um local que facilita a organização e otimização do seu tempo.

Não Perca Esta Oportunidade

Apartamentos nessa condição, localização e preço são raros no mercado atual. Esta é a sua chance de adquirir não apenas uma moradia, mas um investimento em qualidade de vida em uma região de valorização certa. Agende sua visita e sinta o potencial deste lar para ser o seu novo endereço!

Itens do Imóvel

Área de Serviço : 1
Cozinha : 1
Elevador Social : 1
Sala : 1

Itens do Edifício de Apartamento Edifício São Francisco

Edifício São Francisco

Composto por 14 andares e 82 apartamentos incríveis.
Apartamentos com 1 ou 2 dormitórios.

Com um lounge exclusivo, o empreendimento é perfeito para quem busca conforto e qualidade de vida.

Informações
Ano de Lançamento: 2023
Quantidade de Andares: 14

Simule um Financiamento

Localização Apartamento / Padrão em São Carlos


Venda

(ITBI, Registro, Escritura e Certidões)
Consulte-nos

Total
390.000,00

DÚVIDAS SOBRE O IMÓVEL
PREENCHA O FORMULÁRIO


Concordo com os Termos e Privacidade
Imóveis Similares