Área do Cliente
|
Acesse pelo celular

salas comercias com ótima localização dentro do complexo comercial onde será o Paulistão, em frente a Washington Luiz região da Vila Nery

Comercial Salão - Vila Vista Alegre Comercial para Locação em São Carlos

|
Compartilhe:

DISPONÍVEL

Imóvel disponível. Contate-nos pessoalmente para visita-lo


Aluguel
56,25

C. Bonificação
Comercial
Finalidade
237888
Referência
1
Banheiro
8
Garagens
242.00 m²
A. Terreno
242.00 m²
A. Construída
Descrição do Imóvel

VALOR DA LOCAÇÃO É DE R$45,00 POR METRO QUADRO
Possibilidade de aluguel mais de uma sala junto.
Proprietário irá entregar as salas no Shel no contra piso, com os pontos de água, esgoto e energia
Cliente tem que terminar os acabamentos e respeitar o padrão da comunicação visual padrão para todas as lojas
Contrato de no mínimo 2 anos e isenção de multa somente após 2 anos de contrato.
Pátio com estacionamento rotativo

Não poderá: Academia, loja de conveniência, açougue e padaria; Seguimentos que já terão dentro do Paulistão.




Descrição do Imóvel:

Ao lado do Paulistão Atacadista.

IPTU e Condomínio a ser definido.

Apresentamos uma excelente oportunidade de locação comercial em São Carlos/SP, localizado no bairro Vila Vista Alegre. Este imóvel possui uma área construída de 242m² e uma área de terreno de 242m², oferecendo um espaço versátil e de grande potencial para diversos tipos de negócios.

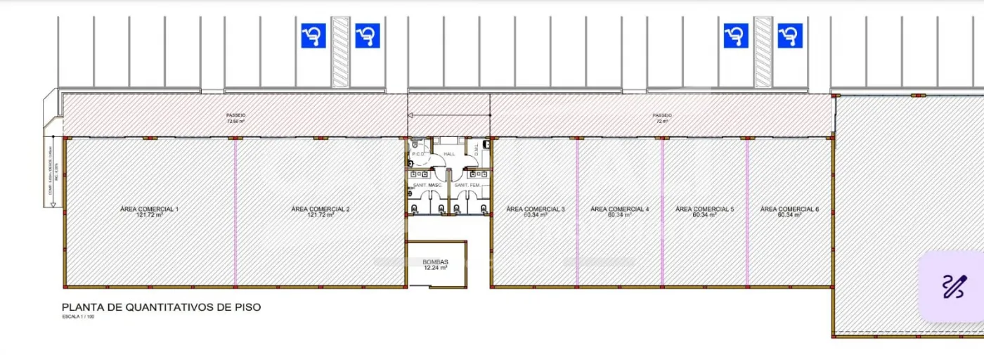
O imóvel é composto por 1 módulo de aproximadamente 242m², que pode ser facilmente dividido em até 4 módulos menores, cada um com cerca de 60m². Essa flexibilidade permite que você adapte o espaço de acordo com suas necessidades, ideal para lojas, escritórios ou outros tipos de comércio.

Além da área ampla, o imóvel conta com 8 garagens, proporcionando comodidade e facilidade de acesso para clientes e colaboradores. A localização estratégica no bairro Vila Vista Alegre garante visibilidade e fluxo de pessoas, tornando este espaço uma escolha atrativa para quem deseja empreender ou expandir seus negócios.

Não perca a chance de explorar essa oportunidade única de locação comercial!

imagens ilustrativas.

Itens do Imóvel

Escritório : 1
PET Friends

Conheça um pouco mais sobre o bairro: Vila Vista Alegre

A Vila Vista Alegre é um bairro residencial em São Carlos que oferece um ambiente tranquilo e acolhedor. Conhecida por suas ruas calmas e arborizadas, a região é ideal para famílias e pessoas que buscam um estilo de vida mais sossegado. O bairro conta com uma infraestrutura básica, incluindo supermercados, padarias e comércios locais, facilitando o acesso a serviços essenciais do dia a dia.

Embora não possua grandes áreas de lazer dentro do bairro, sua localização permite acesso rápido a parques e áreas de entretenimento nas proximidades. A Vila Vista Alegre é uma opção adequada para quem valoriza um lar seguro e confortável, com a conveniência de estar perto do centro da cidade e de suas principais vias de acesso.

Localização Comercial / Salão em São Carlos

DISPONÍVEL

Imóvel disponível. Contate-nos pessoalmente para visita-lo



Aluguel
56,25

C. Bonificação

Total / Mês
45,00

DÚVIDAS SOBRE O IMÓVEL
PREENCHA O FORMULÁRIO


Concordo com os Termos e Privacidade
Imóveis Similares